Blog

Row rect Shape Decorative svg added to top

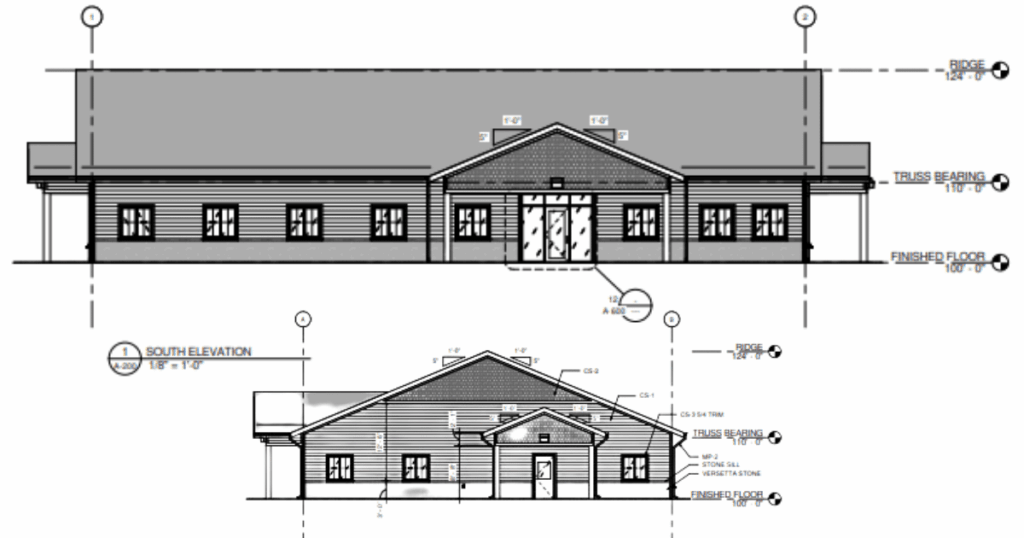
DBS Group to build new housing authority office

st croix housing office

St. Croix Chippewa Indians of Wisconsin has hired DBS Group to design and build a new, ground-up 5,400sf office building for the St. Croix Chippewa Housing Authority. Construction will begin in November and is scheduled for completion this fall.